The "BAse" model

We offer house models depending on your preference, budget and lifestyle. Our primary preference model is the 30m2 that holds all features you need to live in a spacious and sustainable home. Over time, you can expand the model as needed. Or you can design a larger model from start.  

Years of warranty
0
Scandinavian & Locally Produced Wood
0 %
Oversized shipment fees
100
Days until turnkey ready
30
why the bloccobuild house?

the ultimate home

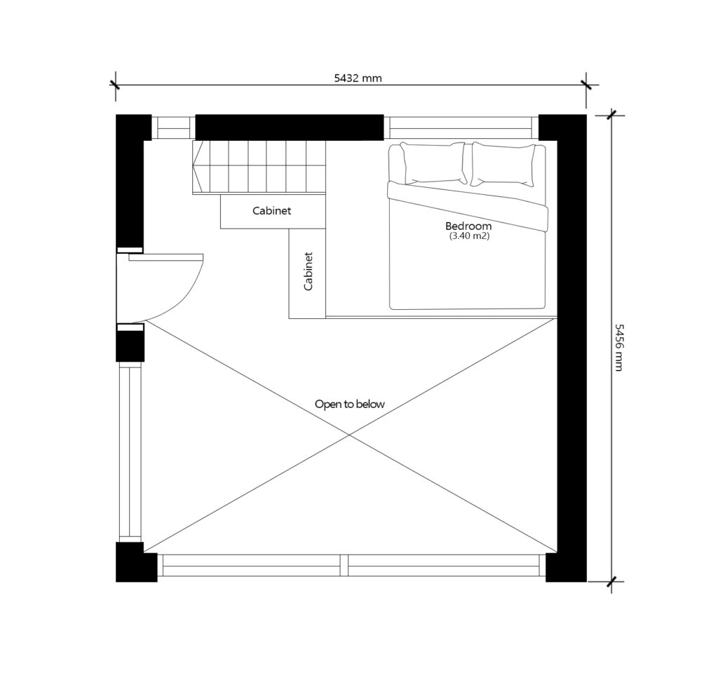
Rooted in a commitment to simplicity and designing with sustainability, the house boasts attractive, expansive windows on the first floor, an open living room space, bathroom, plenty of storage and inviting kitchen with an kitchen island. The staircase is designed according to regular standards (no steep steps) and leads into the second floor with a bedroom. The house maintains complete net-zero status and have exceptional thermal efficiency. It is designed as a modular unit and engineered to withstand and thrive in diverse climates.

FLOOR PLAN

First floor

Second floor

Add more space?

Design your own preferred model

Examples